【重大项目竣工速递】上海青浦区华新镇集体资产经营有限公司厂房改扩建(虹桥医创城一期)项目完工 2025-11-05
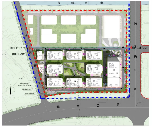
近期,上海青浦区华新镇集体资产经营有限公司厂房改扩建(虹桥医创城一期)项目已顺利完工。该项目为区级重大项目,位于上海市青浦区的北青公路与民兴路交叉路口,主要建设内容包括8栋4层多层厂房,1栋10层高层厂房,配电房、垃圾房、绿化工程等附属工程。
上海青浦区华新镇集体资产经营有限公司厂房改扩建(虹桥医创城一期)项目的自项目启动以来,区重大办高度重视,积极提供跨前服务,定期现场巡查并多次组织相关部门召开协调会议,确保项目的顺利推进。
项目完成后,可满足入驻企业生产制造、医药科研、总部办公等多种需求。


