返回上一级

字号

打印

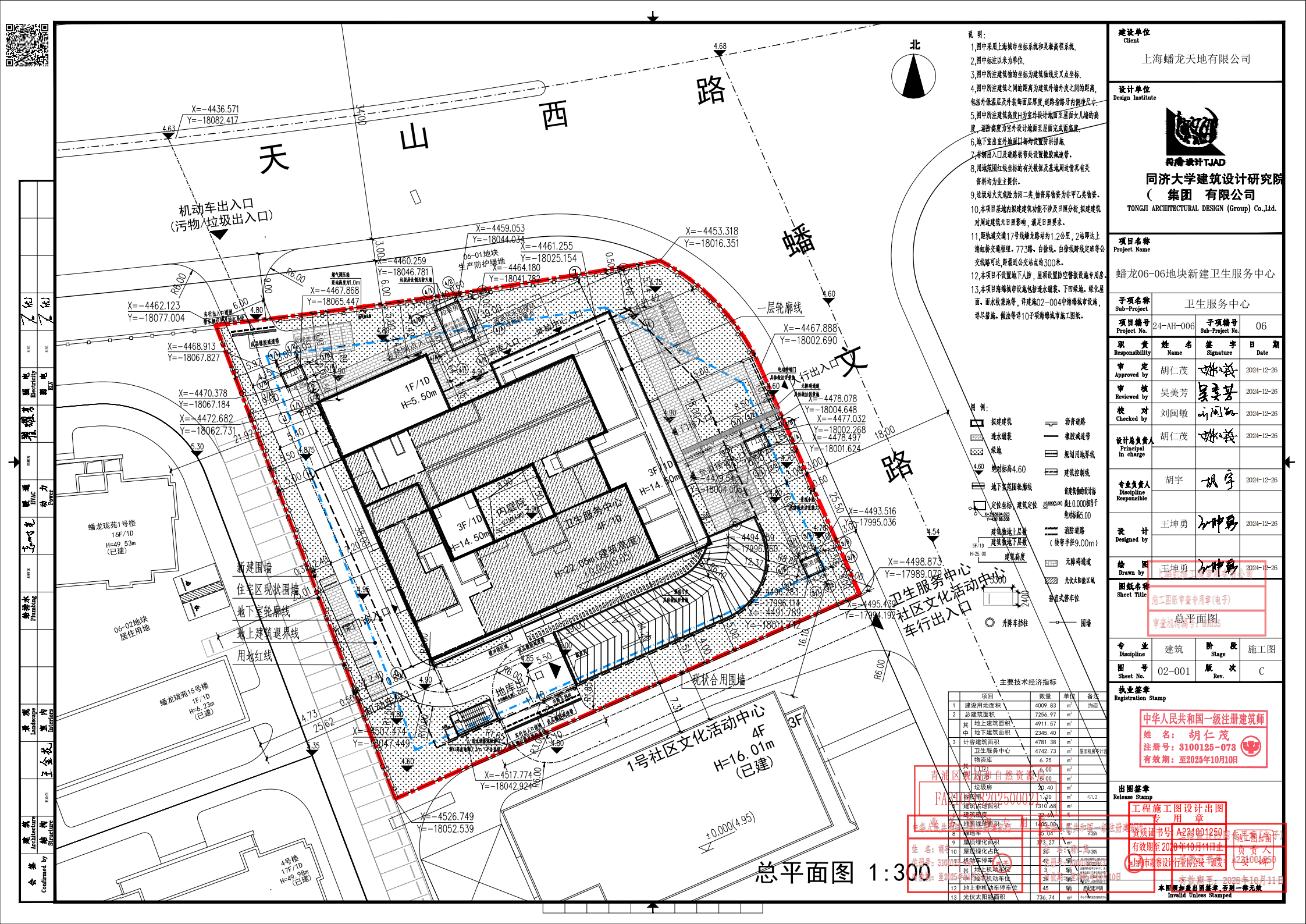
沪青建(2025)FA310118202500021规划许可公告(上海蟠龙天地有限公司) 2025-01-10

根据《中华人民共和国城乡规划法》、《上海市城乡规划条例》等有关规定,现对沪青建(2025)FA310118202500021建设工程规划许可证及其总平面图进行公开。

上海蟠龙天地有限公司

2025年1月10日

沪青建(2025)FA310118202500021_01.png

沪青建(2025)FA310118202500021总图_00.png