返回上一级

字号

打印

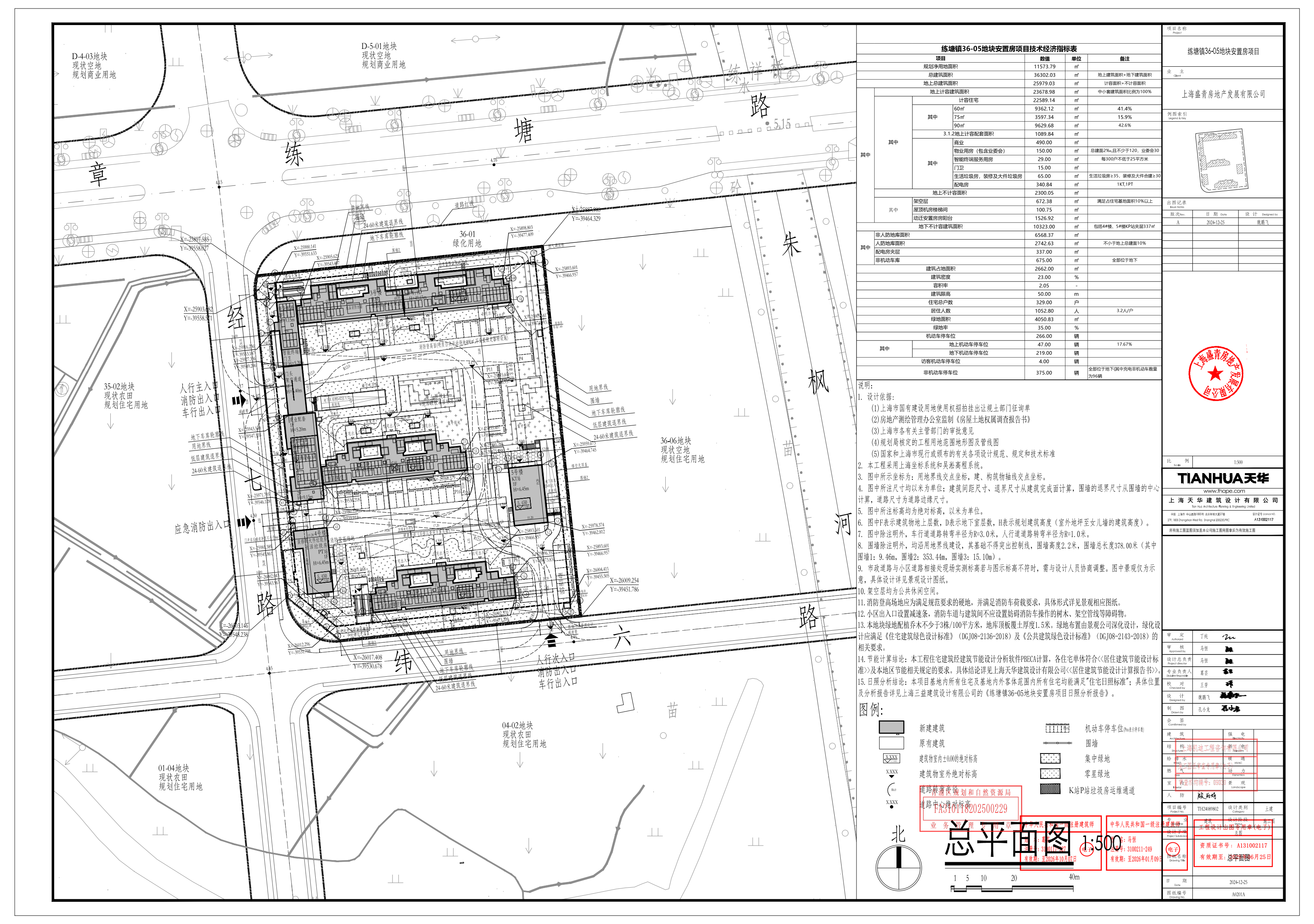
沪青建(2025)FA310118202500229规划许可公告(上海盛青房地产发展有限公司) 2025-04-02

根据《中华人民共和国城乡规划法》、《上海市城乡规划条例》等有关规定,现对沪青建(2025)FA310118202500229建设工程规划许可证及其总平面图进行公开。

上海盛青房地产发展有限公司

2025年4月2日

沪青建(2025)FA310118202500229_01.png

沪青建(2025)FA310118202500229总图_00.png