返回上一级

字号

打印

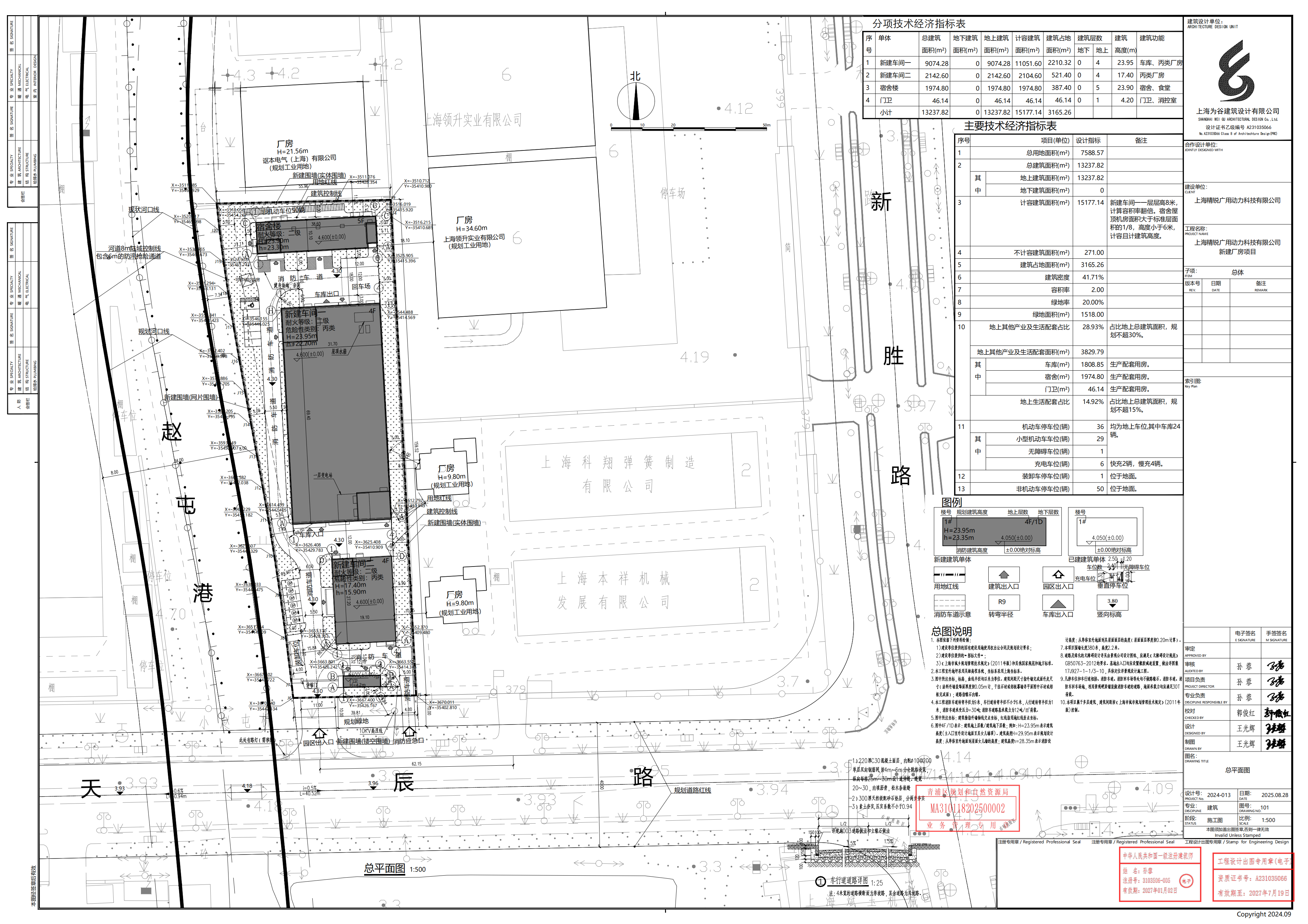
沪青规许(2025)MA310118202500002规划许可公告(上海精锐广用动力科技有限公司) 2025-11-12

根据《中华人民共和国城乡规划法》、《上海市城乡规划条例》等有关规定,现对沪青规许(2025)MA310118202500002建设工程规划许可证及其总平面图进行公开。

上海精锐广用动力科技有限公司

2025年11月12日


沪青规许(2025)MA310118202500002总图_01.png