返回上一级

字号

打印

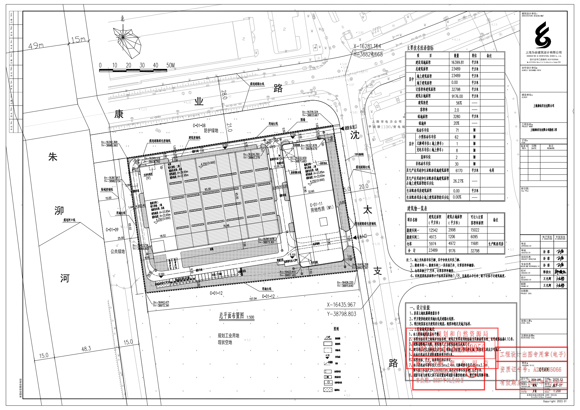
沪青方(2026)DA310118202600056号建设工程设计方案(上海颜钛实业有限公司) 2026-01-28

沪青方(2026)DA310118202600056总图_01.png