青浦区翰泰路(新园路-华青路)、昭悦路(新业路-新达路)新建工程公示 2025-12-01
公 示
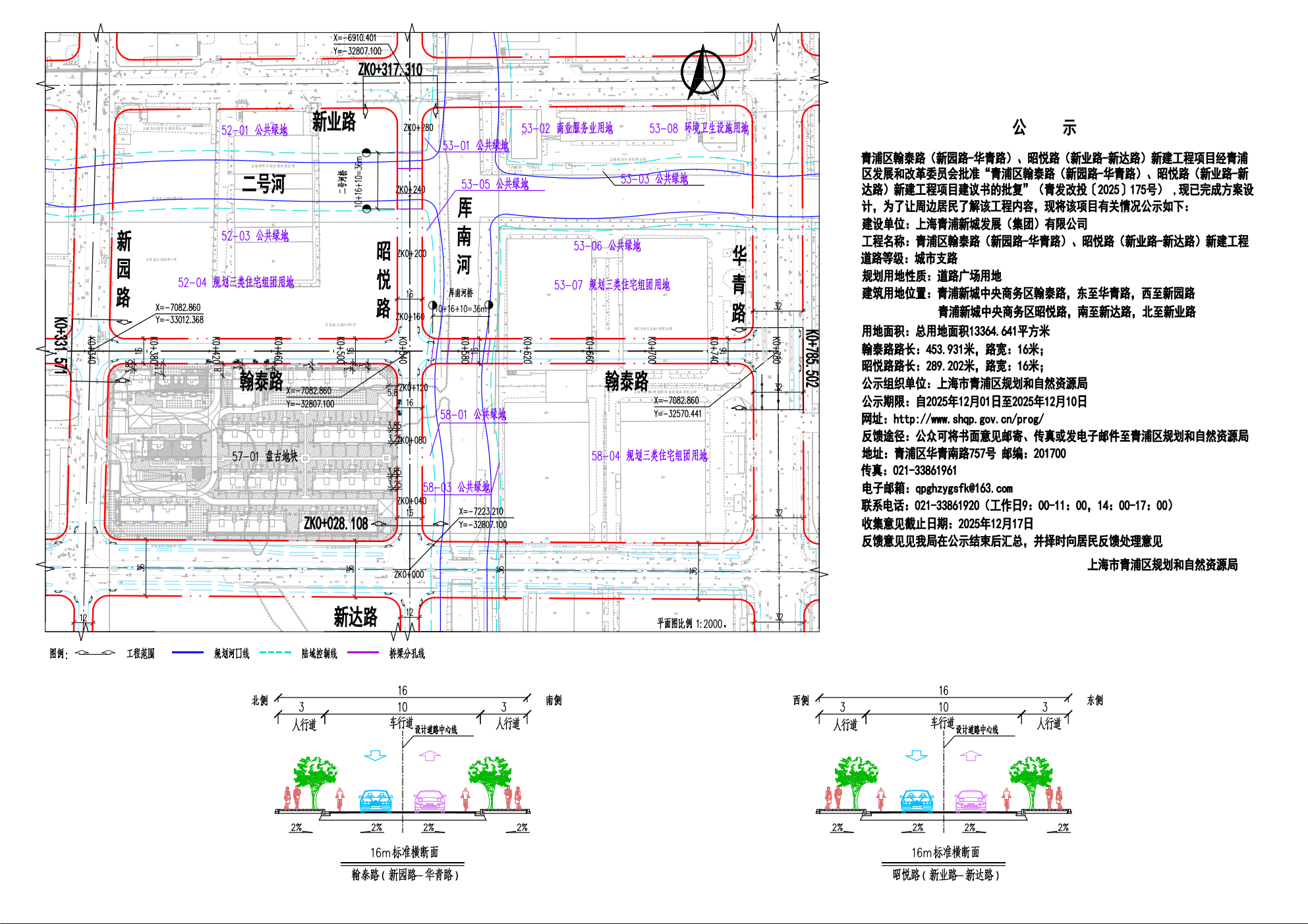
青浦区翰泰路(新园路-华青路)、昭悦路(新业路-新达路)新建工程项目经上海市青浦区发展和改革委员会批准 “关于青浦区翰泰路(新园路-华青路)、昭悦路(新业路-新达路)新建工程项目建议书的批复”(编号:青发改投﹝2025﹞175号),现已完成方案设计,为了让周边居民了解该工程内容,现将该项目有关情况公示如下:
建设单位:上海青浦新城发展(集团)有限公司
工程名称:青浦区翰泰路(新园路-华青路)、昭悦路(新业路-新达路)新建工程
建设用地位置:青浦新城中央商务区翰泰路(华青路-新园路)、昭悦路(新业路-新达路)
公示内容:总平面图和有关经济技术指标(详见公示图)
公示期限:2025年12月1日至2025年12月10日
网址:http://www.shqp.gov.cn/prog/
组织公示单位:上海市青浦区规划和自然资源局
反馈途径:公众可将书面意见邮寄、传真或发电子邮件至区规划资源局
地址:青浦区华青南路757号 邮编:201700
传真:021-33861961
电子邮箱:qpghzygsfk@163.com
联系电话:021-33861920(工作日9:00-11:00,14:00-17:00)
收集意见截止日期:2025年12月17日
反馈意见我局在公示结束后汇总,并择时向居民反馈处理意见。

