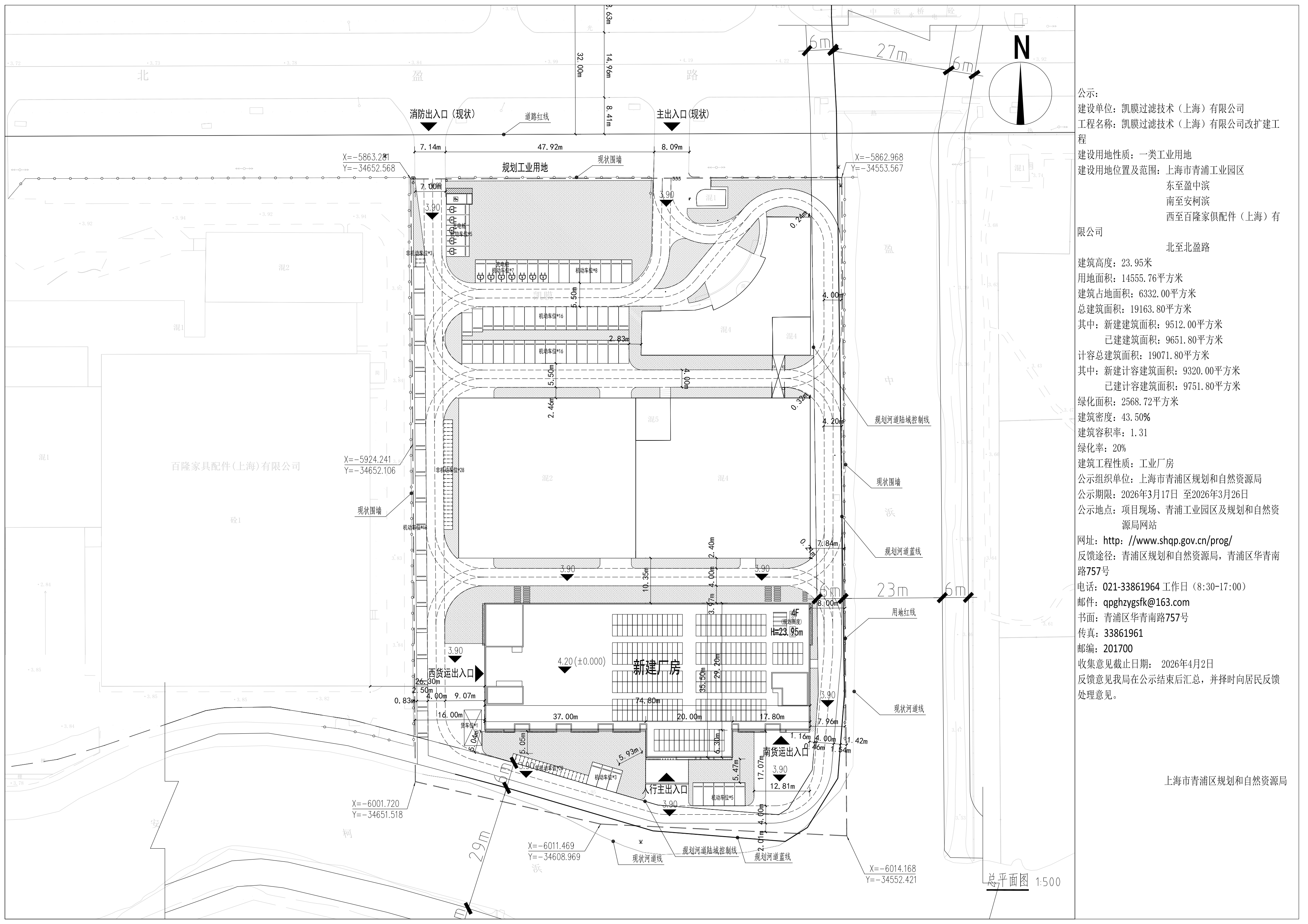
凯膜过滤技术(上海)有限公司改扩建工程公示 2026-03-17
工程名称:凯膜过滤技术(上海)有限公司改扩建工程
建设用地性质:一类工业用地
建设用地位置及范围:上海市青浦工业园区
东至盈中滨
南至安柯滨
西至百隆家俱配件(上海)有 限公司
北至北盈路
建筑高度:23.95米
用地面积:14555.76平方米
建筑占地面积:6332.00平方米
总建筑面积:19163.80平方米
其中:新建建筑面积:9512.00平方米
已建建筑面积:9651.80平方米
计容总建筑面积:19071.80平方米
其中:新建计容建筑面积:9320.00平方米
已建计容建筑面积:9751.80平方米
绿化面积:2568.72平方米
建筑密度:43.50%
建筑容积率:1.31
绿化率:20%
建筑工程性质:工业厂房
公示组织单位:上海市青浦区规划和自然资源局
公示期限:2026年3月17日 至2026年3月26日
公示地点:项目现场、青浦工业园区及规划和自然资
源局网站
网址:http://www.shqp.gov.cn/prog/
反馈途径:青浦区规划和自然资源局,青浦区华青南路757号
电话:021-33861964 工作日(8:30-17:00)
邮件:qpghzygsfk@163.com
书面:青浦区华青南路757号
传真:33861961
邮编:201700
收集意见截止日期: 2026年4月2日
反馈意见我局在公示结束后汇总,并择时向居民反馈处理意见。
上海市青浦区规划和自然资源局

