返回上一级

字号

打印

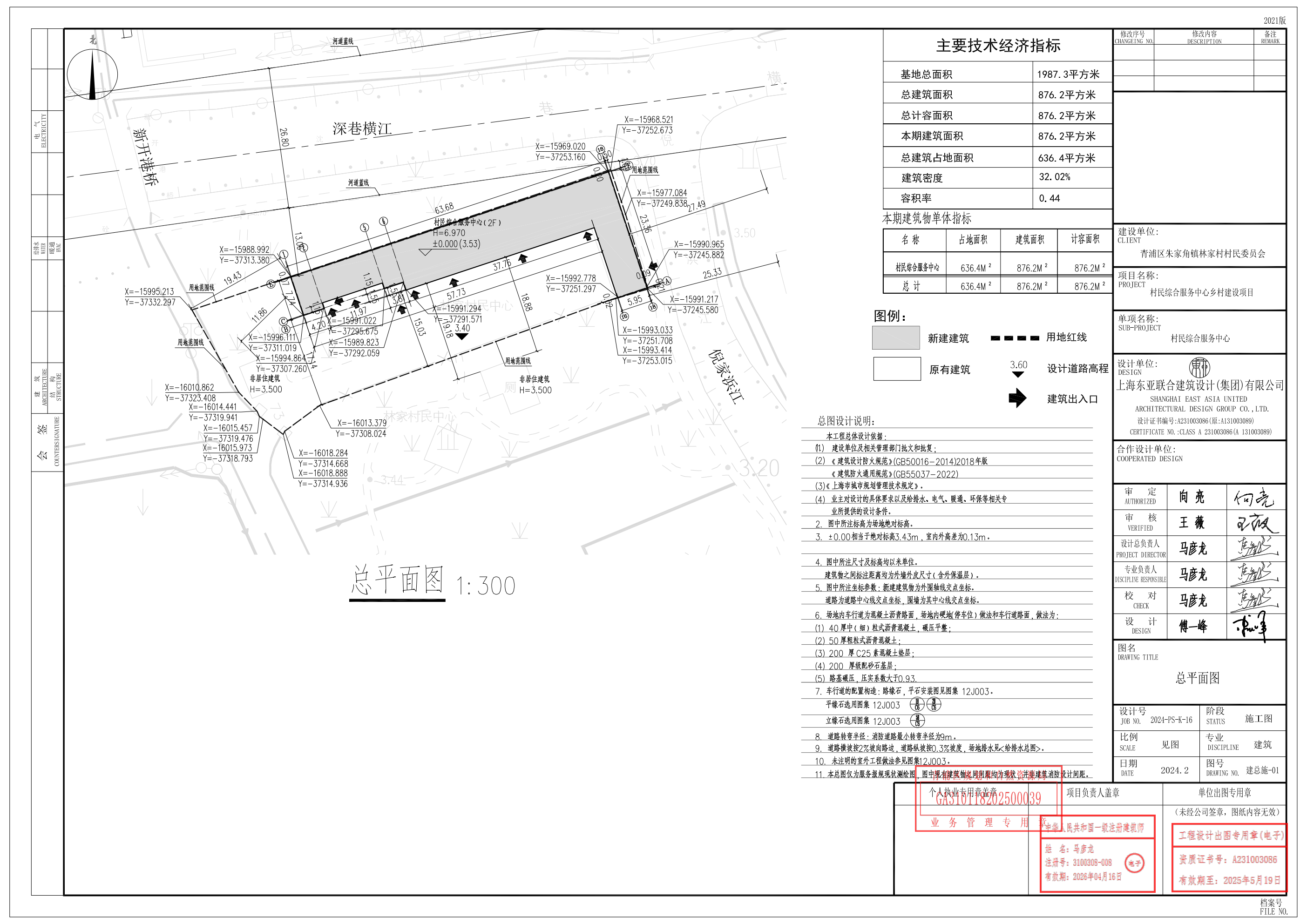
沪青乡(2025)GA310118202500039规划许可公告(青浦区朱家角镇林家村村民综合服务中心) 2025-10-21

根据《中华人民共和国城乡规划法》、《上海市城乡规划条例》等有关规定,现对沪青乡(2025)GA310118202500039建设工程规划许可证及其总平面图进行公开。

青浦区朱家角镇林家村村民综合服务中心

2025年10月21日

乡村工程规划许可证_02.png

总图-村民综合服务中心_01.png