关于对青浦区政协第五届委员会第四次会议 第 153 号提案的答复
无
主动公开
无
无
无
2020.10.12
关于对青浦区政协第五届委员会第四次会议
第 153 号提案的答复
办理结果: 解决或采纳
陆平一委员:
您在区第五届委员会第四次会议上提出的第153号委员提案“关于建立IDC机房的建议”已收悉。现将办理情况答复如下:
一、青浦区IDC机房建设现状
青浦区三大运营商中上海移动青浦分公司和上海电信青浦分公司均有IDC机房。青浦区政府部门直接租用上海移动青浦分公司豪港园区IDC机房。
以豪港园区IDC机房为例,该机房位于青浦区漕盈路1789号,三层建面。采用双路市电引入,配备大容量UPS设施。
一层面积300平,共部署机柜108柜,租赁使用方为青浦区科委。
二层剩余机房面积240平,留待后期扩容改造,可部署机柜60柜。
三层用于运维和办公使用。部署7*24小时运维监控系统和执勤人员。
机房建设标准满足“GB 50174 B级”标准,属于B类IDC,符合以下机房标准。
1)独立使用的主机房区域(配备标准服务器机柜),另配套办公区域(包括监控室、运维室、调试室、值班室、休息室、独立盥洗室、备品备件室等)
2)电力供应:双路市电供电,不小于1000KVA×2。不间断电源(UPS)系统配置为N+1方式,不间断电源系统电池备用时间为2小时;
3)机房设置温、湿度自动调节设施,使机房温、湿度的变化在设备运行所允许的范围之内。机房的环境标准为:温度 23℃±2℃,湿度 40%~70%;动力环境监控系统,纳入公司动环平台监控范围
主要包括以下内容:
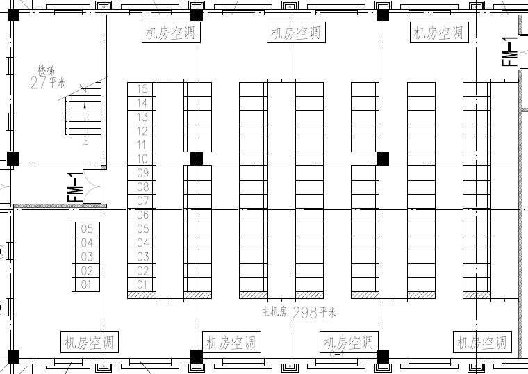
机架平面布局
本项目在豪港园区研发楼一层新建IDC主机房,主机房机架平面布局如下图:
本项目机房空调采用下送风方式;机架建议采用19英寸标准机架,机架前送风,尺寸为600×1200×2000mm,内部42U,每个机柜内部配置2条PDU,每个PDU配置20个标准插座。本项目在主机房内共规划业务机架108个,单机架平均功耗为3.16kW(16A)。
机架的布置建议根据冷热通道分开设置原理,采用面对面、背对背方式,冷通道之间配置模块化冷池。
主机房内每列机柜均配置1套交流双回路电源头柜,各机房电源头柜至所在列机柜之间,采用ZA-RVV 1kV 3×6mm2的电缆。电源头柜位于各机架列的列头位置(上图中阴影标识机柜为电源头柜),共7套。电源头柜尺寸为300×1200×2000mm。
机房内配置架空地板,架空地板高500mm,机柜和头柜配置底座。
本工程在二层设置传输机房,并配置-48V直流电源和2台5P空调。
机房走线架建设
本项目敷设机房内上走线架供光、电缆走线,包括通信走线架、电源走线架、光纤走线架、监控走线架。
本项目一层梁底高度3750mm,架空地板高度500mm,机架高度2000mm。机架上方设置2层走线架,下层走线架在机柜柜顶上方200mm高度,上层走线架在下层走线架上方300mm高度,上层走线架上方需留出300mm高度操作空间。
走线架包括IDC机房内强、弱电走线架,IDC机房至三层监控室和二层传输机房的光缆走线架。
机房监控建设方案
对IDC机房的监控是运营商的运维部门最主要的工作之一,针对IDC机房管理与监控的特点,为达到确保机房可以集中管理,统一监控并迅速做出反应,并且为了实现降低机房监控维护成本,提高运行维护质量等目标。
本项目新建监控系统,对机房实施综合管理。监控系统功能包含视频监控、环境监控、漏水监控、冷池状态监控、机柜用电情况监控、广播系统等。根据IDC机房的平面布局及走线架布局,布置视频监控摄像头、温湿度传感器、广播扬声器点位等。
监控系统平台
机房监控系统平台应包含角色管理、权限管理、配置管理、告警管理、设备管理、报表管理、日志管理、接口管理、远端界面管理、统计分析等功能;机房维护人员通过管理主界面,应能进行平台配置、管理、告警处理、日志查看、报表导出等操作,应能直观查看前端采集设备采集到的各类监控数据、各类告警信息。监控系统平台应能浏览IDC机房3D视图并能直观查看前端采集设备采集到的各类监控数据、各类告警信息;通过机房侧小屏显示界面,应能浏览IDC机房3D视图并能直观查看各类监控数据、各类告警信息。
本项目监控系统功能包含视频监控、环境监控、漏水监控、冷池状态监控、机柜用电情况监控、广播系统等,监控系统平台应能将以上监控数据进行提取、分析、存储,并能根据客户要求生成定制化报表,且可在监控中心大屏展示。机房维护人员应能对监控中心大屏显示内容进行配置管理。
监控平台告警应含声光告警和短信告警,系统建议采取B-S架构便于系统部署和升级。
机房监控平台应具备软件二次开发和良好的可扩充性。
本项目设置移动公司监控室,监控室配置拼接屏;为青浦科委设置监控运维室,留出一面墙体,供青浦科委自行配置大屏幕。
视频监控系统
视频监控系统主要完成对IDC机房内各个出入口、通道、机房、设备区域实现无盲点实时图像的传输及存储,以完成集中监视的功能,由于区域集中,摄像机数量较多,为了能及时处理事件及负责专门的保安职责,人防管理上采取集中监控的方式,本项目建议将监控主机及控制、显示设备统一放置于监控中心,使监控系统有效工作,设立集中管理模式,从而对整个系统进行集中统一管理。
监控系统除了对实时视频图像的监视,另一个重要功能就是记录监控图像,为事件提供调查依据,系统采用动态事件监控录像方式,图像保存于硬盘录像机中。
由于采用集中监控,为了保证系统的稳定性及免维护性,采用嵌入式硬盘录像机(DVR),数字硬盘录像机的总体记录能力在图像质量不低于720P质量的情况下达到25帧/秒。数字硬盘录像机具有联网控制和网络图像传输功能。
DVR带有以太网接口,可以同时接入网络,通过局域网进行管理、扩充,同时通过网络查看监控图像。
由于所有监控图像由DVR保存及管理,整个机房处于严密的监控之下,所有摄像机进行事件动态录像,方便日后检索及查看,使整个监控系统更经济实用。
系统为星型拓扑结构,系统设计一个主控。主控设置在监控室,配备客户端软件PC,本地录像主机信号通过RGB矩阵系统将信号显示在监控室的电视墙上,豪港园区研发楼内各机房的图像资料也可通过客户端软件在PC上显示或DVR外接显示。研发楼三层移动监控室内安装录像主机,图像资料本地存储。
根据机房现有的设备使用情况,动态侦测录像保存3个月。一路4CIF图像所需存储空间为800M/小时,则一个月共需800×24×30/1024/1024=0.55T,由于采用动态侦测,系统仅在图像有变化时进行记录,且因为机房区域人员活动较少,每天24小时有至少18小时图像为静态,则每路图像配置0.45T存储空间就能保存3个月以上。
豪港园区研发楼的闭路监控全面,在各出入口、通道、机房设备区、辅助功能区等均布置摄像机,摄像机采用自动变焦镜头彩色半球形摄像机。
根据整个系统供电的要求,考虑电源的设定,摄像头采用PoE供电方式。视频监控系统(含末端PoE供电摄像头)需全部接入UPS系统;接入交换机、PoE交换机、汇聚交换机等等,均应具备双路供电模式。
主机房内摄像头监控点要求在每个出入点均须安装1个、在每列机架间通道的两端各安装1个、在主走道两端各安装1个;若主走道长度超过30米,则每10米左右安装1个。
视频监控包含IDC主机房内、电力室的主通道和出入口、传输机房、楼内通道;要求系统提供两个终端,分别显示机房内和机房外监控图像。
环境监控系统
环境监控系统具有自诊断功能:监视各智能设备的运行状况和运行参数,对智能设备通讯中断、通讯故障做出诊断并及时报警。对系统发生的报警事件,计算机自动显示处理,并利用语音系统循环播报报警事件,直至人工应答报警事件,使报警事件不会遗漏。
本工程需新建针对豪港园区一层主机房内基础设施的监控,包含电气、环境监控系统,环境监测范围包含:
通过安装温湿度传感器来监测主机房温度、湿度分布状态
汇总主机房环境监控系统至统一监控操作平台
本工程各新增机架的用电情况监控通过在新增电源头柜内配置多功能数显表实时显示,并配置智能接口,将所有输出分路电压、电流和电度值等数据输出至传动中心,并纳入能耗监测系统。
此外,本次新增机架均在机架内配置电流监控模块,以实现的单个机柜自身的用电情况显示。
广播系统
广播系统具备事务性紧急广播的功能,将事务性的通知通过广播系统发布到每个楼层,使得楼层间的联系更为快捷迅速;要求操作简单,管理灵活方便;系统结构简单,功能强、性能稳定。
本期工程主要针对豪港园区研发楼各机房区域,通过布置室内安装悬吊扬声器、控制中心安放前置放大器以及功放等设备来实现,并接入主楼一层监控室已有广播中心,以实现指定机房、指定楼层、跨楼层的广播。
门禁系统
本项目对楼内主要出入口、走道等公共服务区用房及机房的门进行监控管理。
每32个(少于等于32个)门禁控制器串联一条总线,每条总线配置一个通讯转换器,通过通讯转换器转为TCP/IP信号,再通过设备管理网接入到消控室管理PC进行管理。
授权:由管理人员授权;
读卡距离:采用近距离读卡;
读卡方式:支持IC卡;机房门考虑采用指纹仪;
布点原则:电梯厅、前室、大开间办公室、会议室等设置门禁系统。
青浦电信有两个IDC机房:1、青浦区公园东路1818号电信大楼5楼idc机房,共90个机架,可用机架数80个;2.青浦区胜利路246号电信万寿idc机房,共30个机架,可用机架数约10个。内部架构与豪港机房相同。
综上以述,青浦区IDC机房技术先进,性能可靠,空间布局合理,面向政府部门和青浦企业,能有力服务于青浦互联网、电子商务产业发展。
