返回上一级

字号

打印

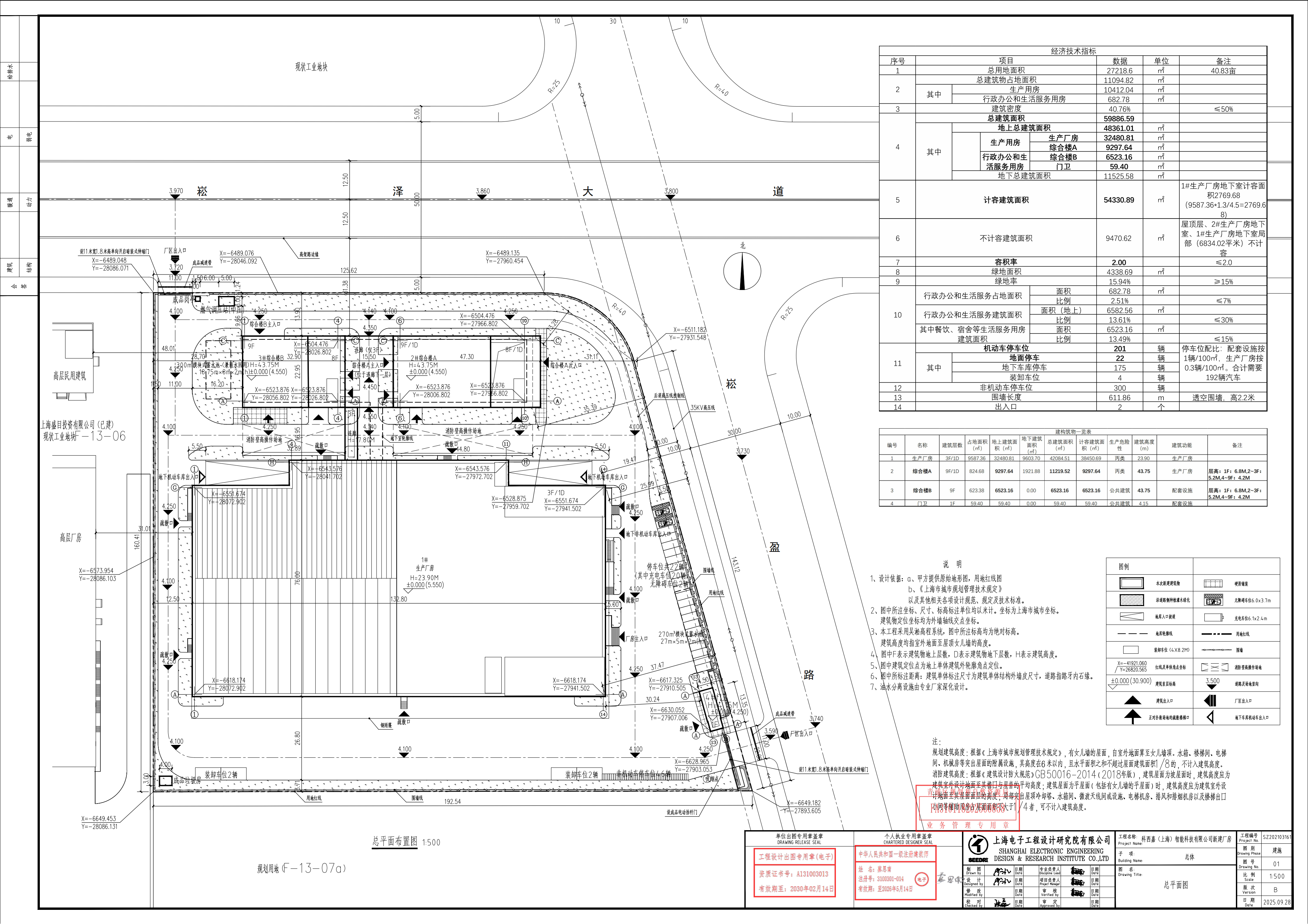
沪青建(2025)FA310118202500858规划许可公告(科西嘉(上海)智能科技有限公司) 2025-11-27

根据《中华人民共和国城乡规划法》、《上海市城乡规划条例》等有关规定,现对沪青建(2025)FA310118202500858建设工程规划许可证及其总平面图进行公开。

科西嘉(上海)智能科技有限公司

2025年11月27日

沪青建(2025)FA310118202500858_02.png

沪青建(2025)FA310118202500858总图_01.png