返回上一级

字号

打印

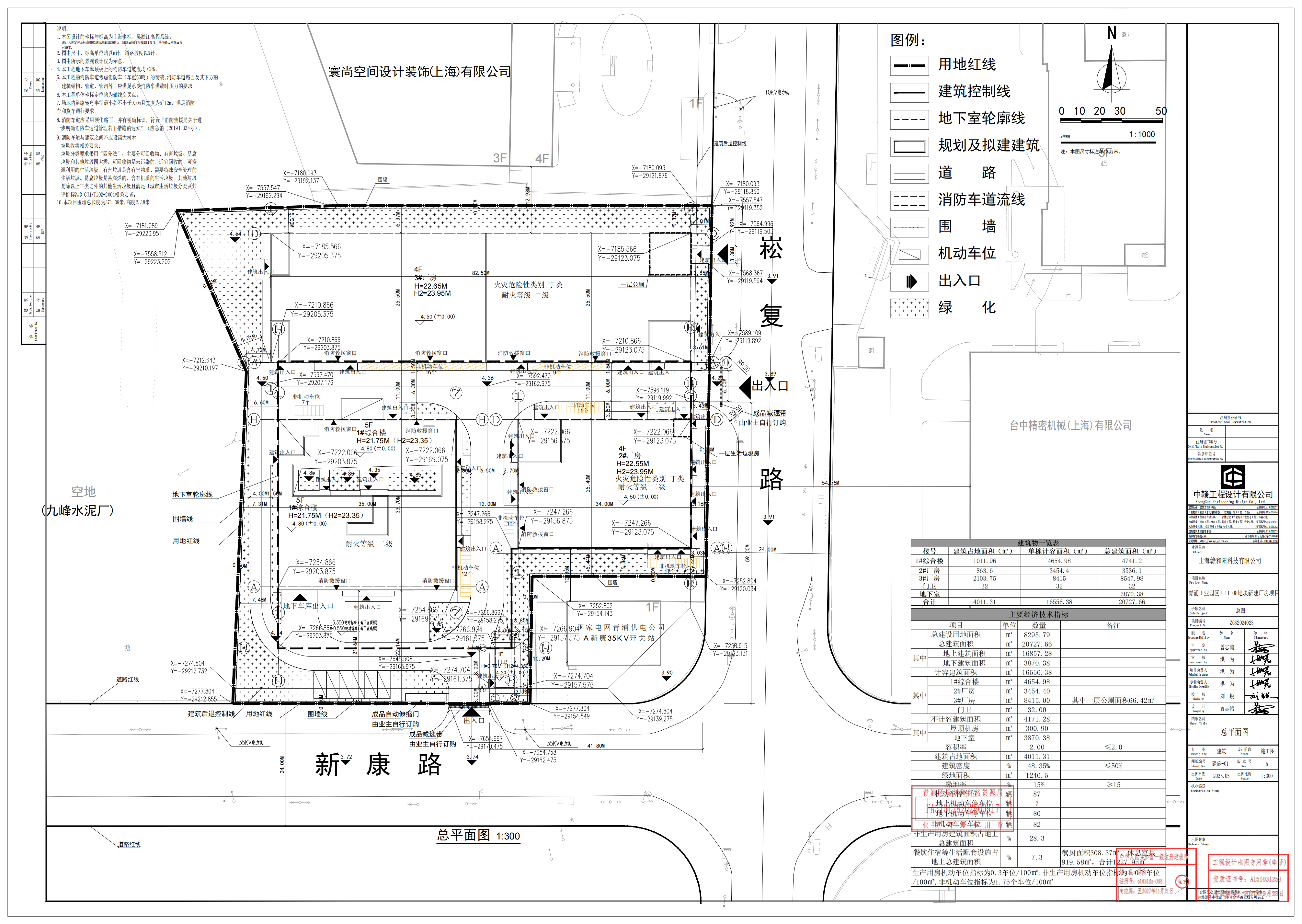
沪青建(2025)FA310118202500917规划许可公告(上海赣和阳科技有限公司) 2025-12-23

根据《中华人民共和国城乡规划法》、《上海市城乡规划条例》等有关规定,现对沪青建(2025)FA310118202500917建设工程规划许可证及其总平面图进行公开。

上海赣和阳科技有限公司

2025年12月23日

沪青建(2025)FA310118202500917_02.png

沪青建(2025)FA310118202500917总图_01.png