返回上一级

字号

打印

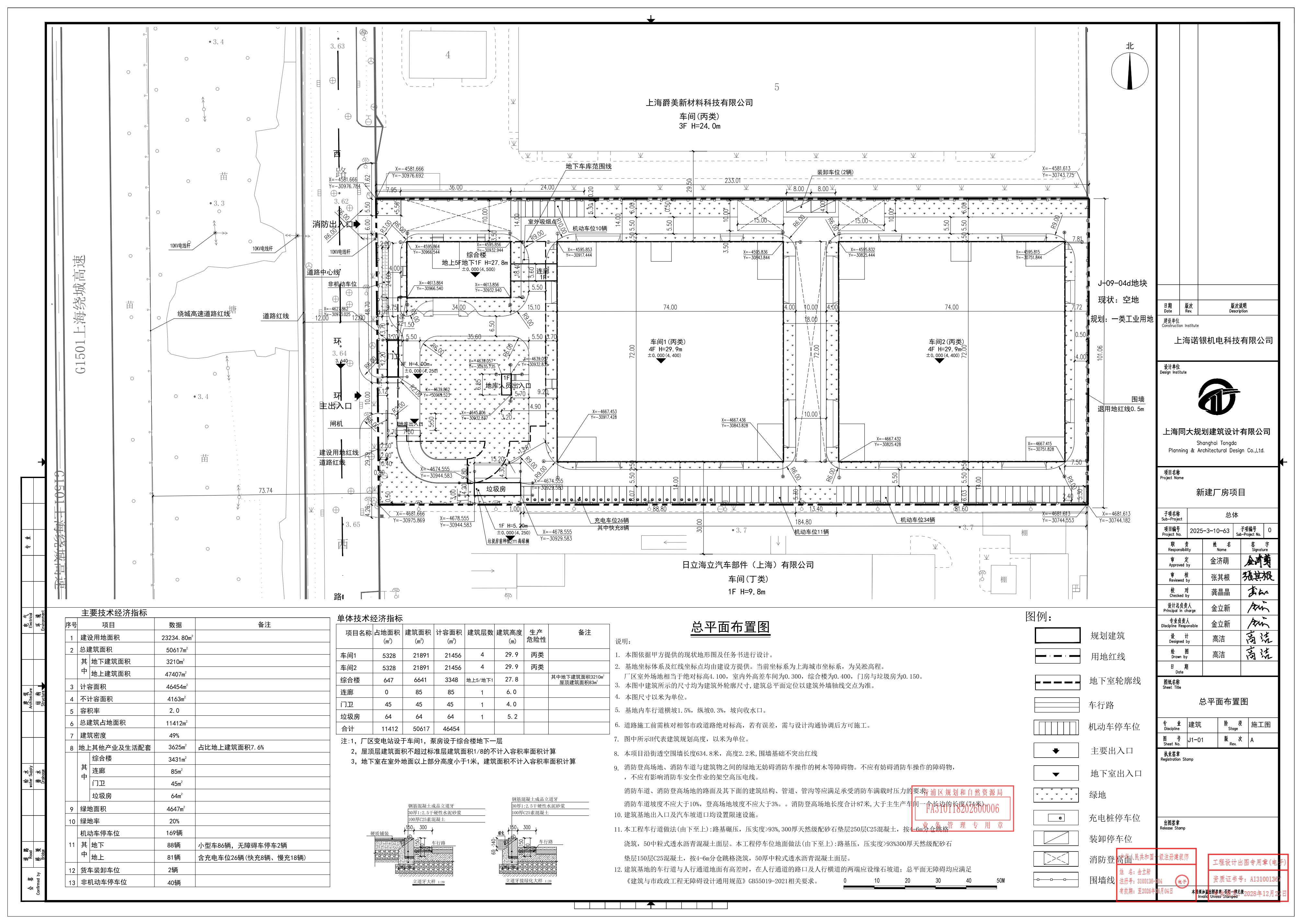
沪青建(2025)FA310118202500934规划许可公告(上海诺银机电科技有限公司) 2026-01-05

根据《中华人民共和国城乡规划法》、《上海市城乡规划条例》等有关规定,现对

沪青建(2026)FA310118202600006建设工程规划许可证及其总平面图进行公开。

上海诺银机电科技有限公司

2026年01月05日

沪青建(2026)FA310118202600006_02.png

沪青建(2026)FA310118202600006总图_01.png