返回上一级

字号

打印

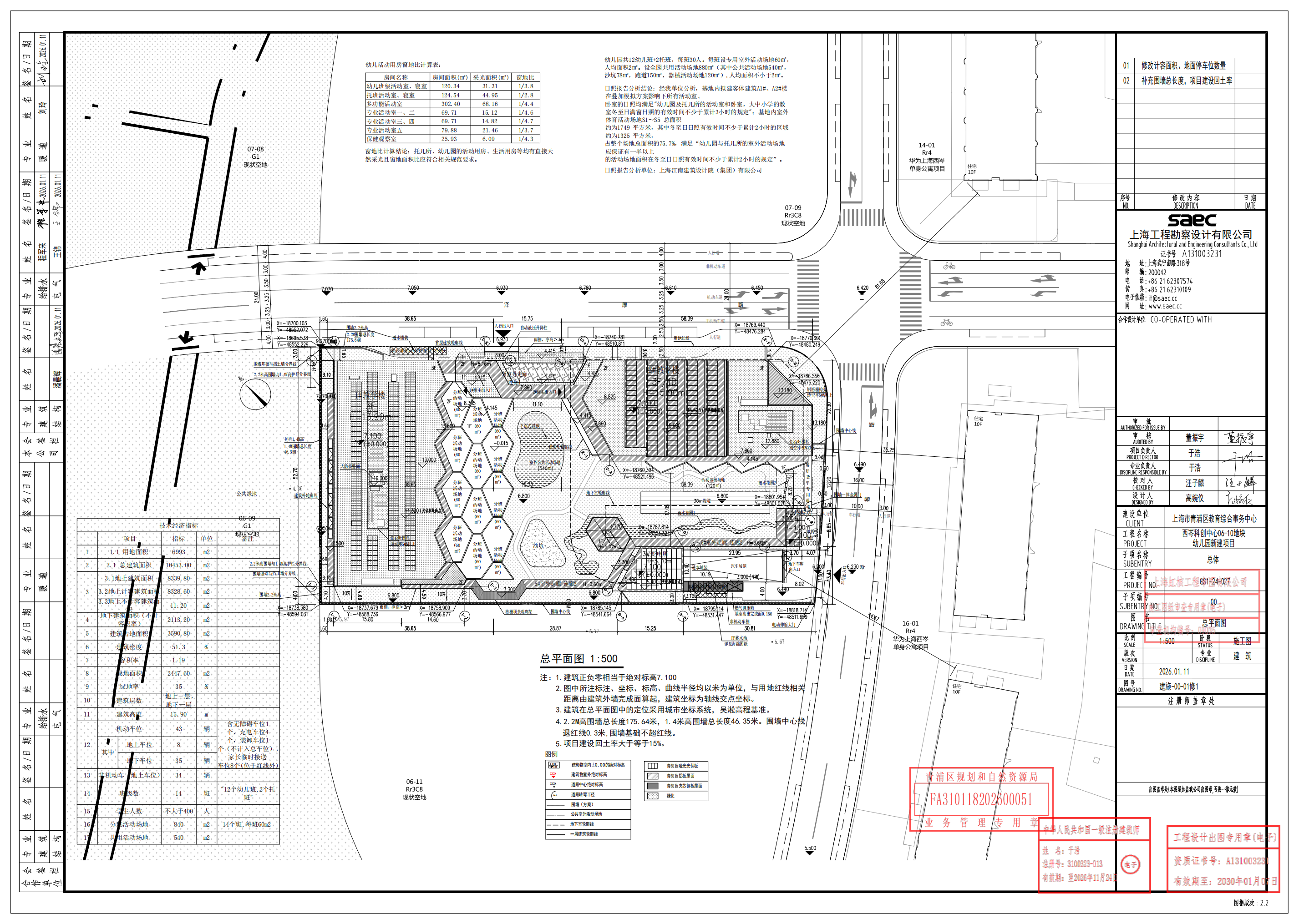
沪青建(2026)FA310118202600051规划许可公告(上海市青浦区教育综合事务中心) 2026-01-26

根据《中华人民共和国城乡规划法》、《上海市城乡规划条例》等有关规定,现对沪青建(2026)FA310118202600051建设工程规划许可证及其总平面图进行公开。

上海市青浦区教育综合事务中心

2026年01月26日

沪青建(2026)FA310118202600051_02.png

沪青建(2026)FA310118202600051总图_01.png