返回上一级

字号

打印

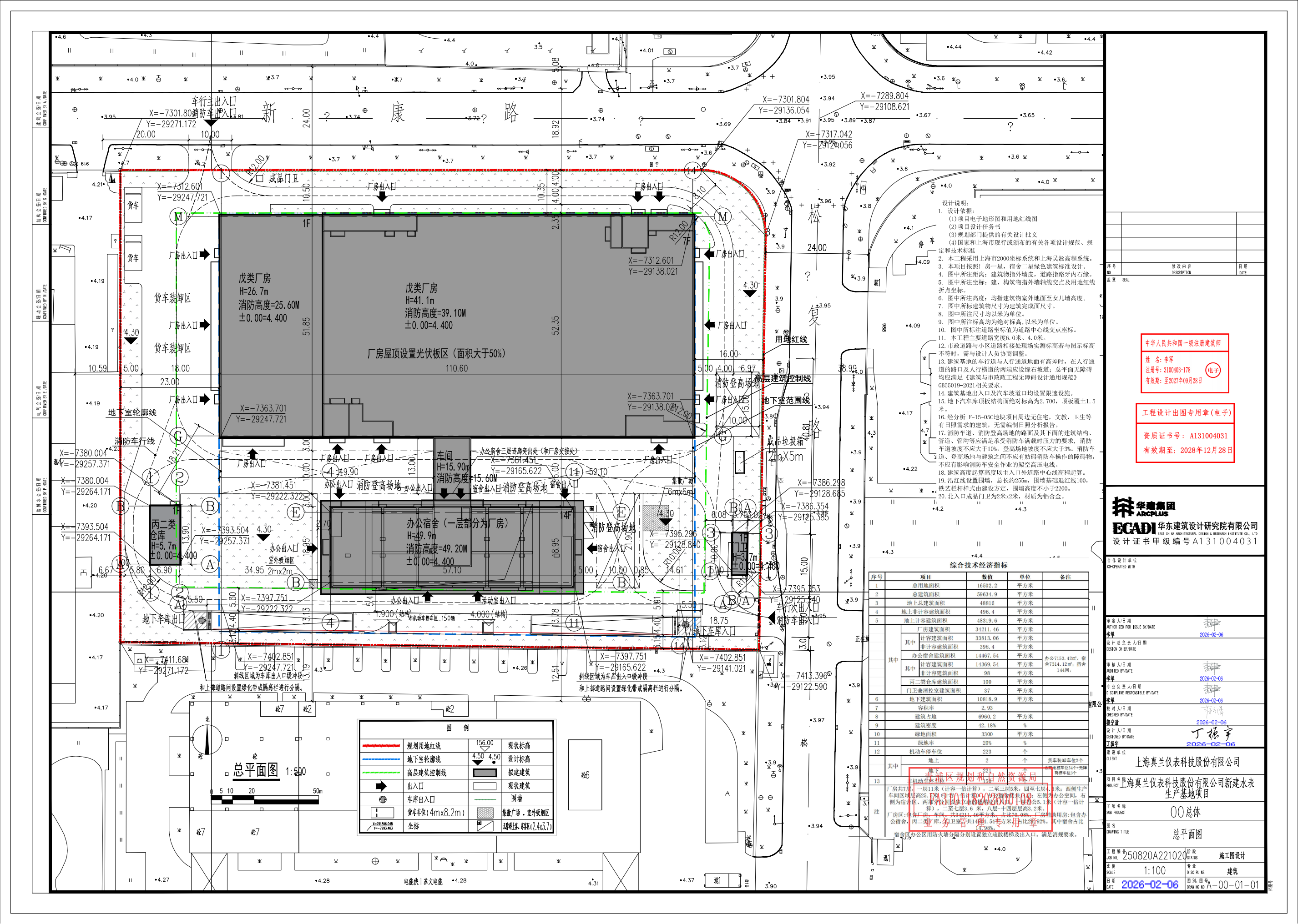
沪青建(2026)FA310118202600108规划许可公告(上海真兰仪表科技股份有限公司) 2026-02-13

根据《中华人民共和国城乡规划法》、《上海市城乡规划条例》等有关规定,现对沪青建(2026)FA310118202600108建设工程规划许可证及其总平面图进行公开。

上海真兰仪表科技股份有限公司

2026年2月13日

沪青建(2026)FA310118202600108_02.png

沪青建(2026)FA310118202600108总图_01.png