返回上一级

字号

打印

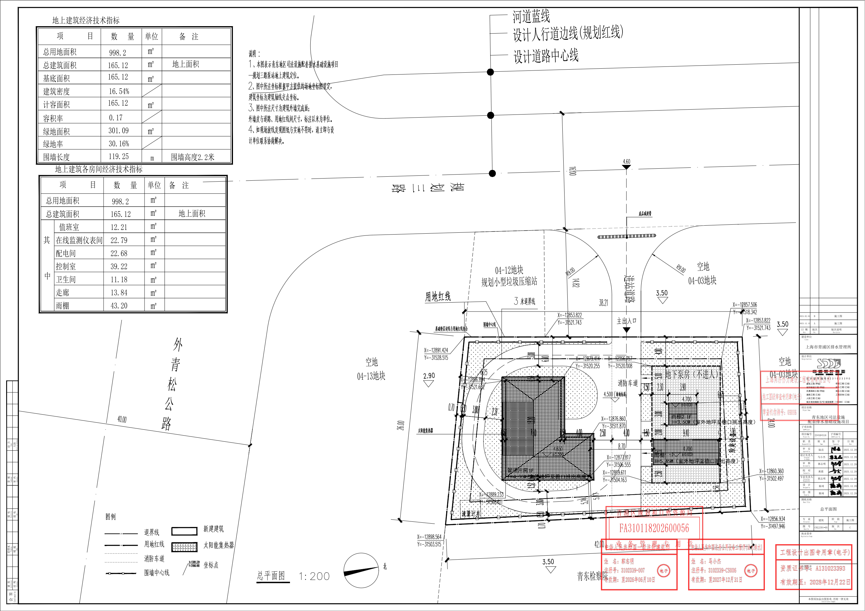
沪青建(2026)FA310118202600056规划许可公告(上海市青浦区排水管理所) 2026-01-27

根据《中华人民共和国城乡规划法》、《上海市城乡规划条例》等有关规定,现对沪青建(2026)FA310118202600056号建设工程规划许可证及其总平面图进行公开。

上海市青浦区排水管理所

2026年1月27日

建设工程规划许可证(FA310118202600056)_02.png

8-C02JZ01-05-总平面图 (1)_01.png