返回上一级
字号
大
中
小
打印
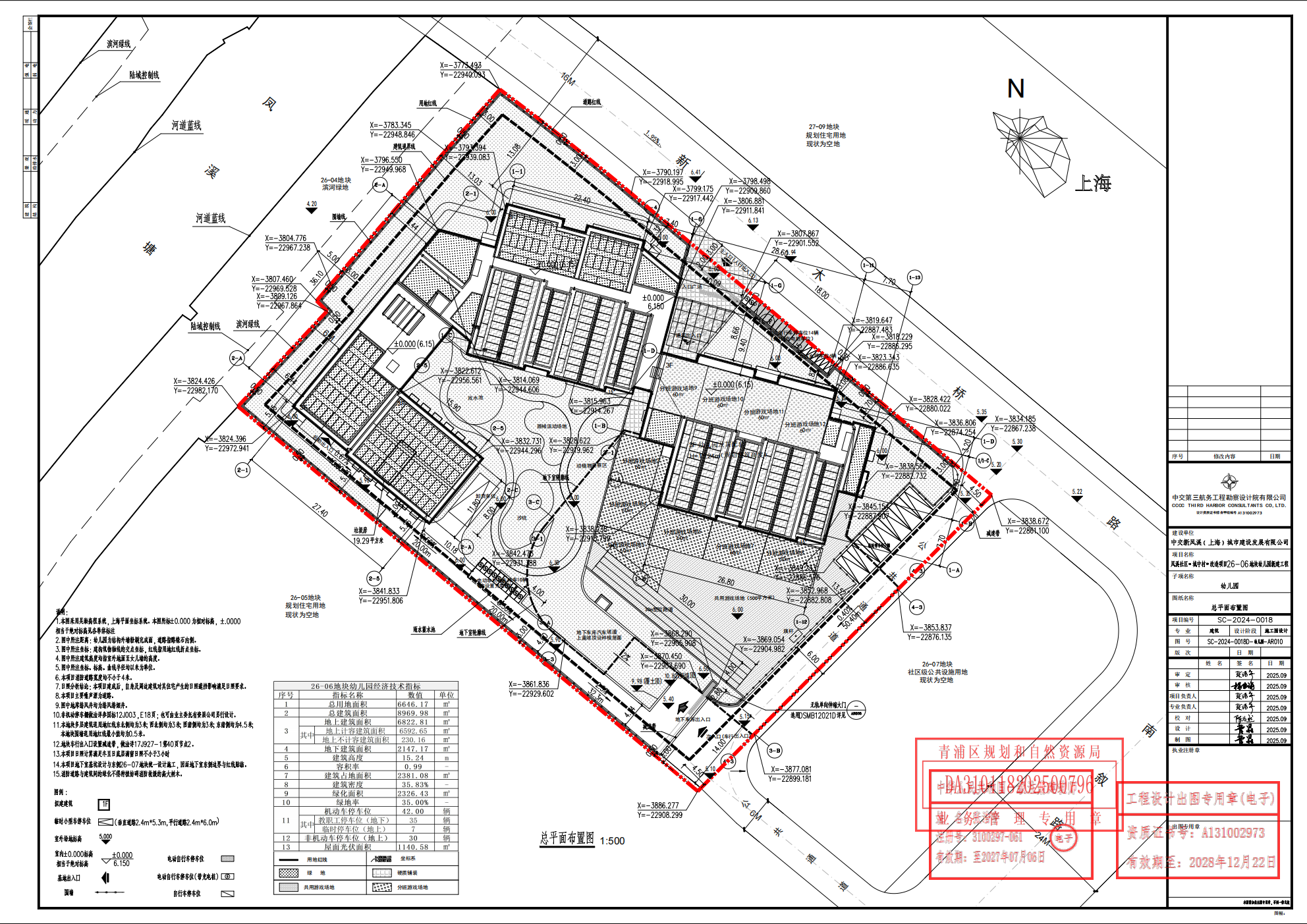
沪青方(2025)DA310118202500785建设工程设计方案(上海市青浦区金泽镇社区卫生服务中心)
2025-10-28