返回上一级

字号

打印

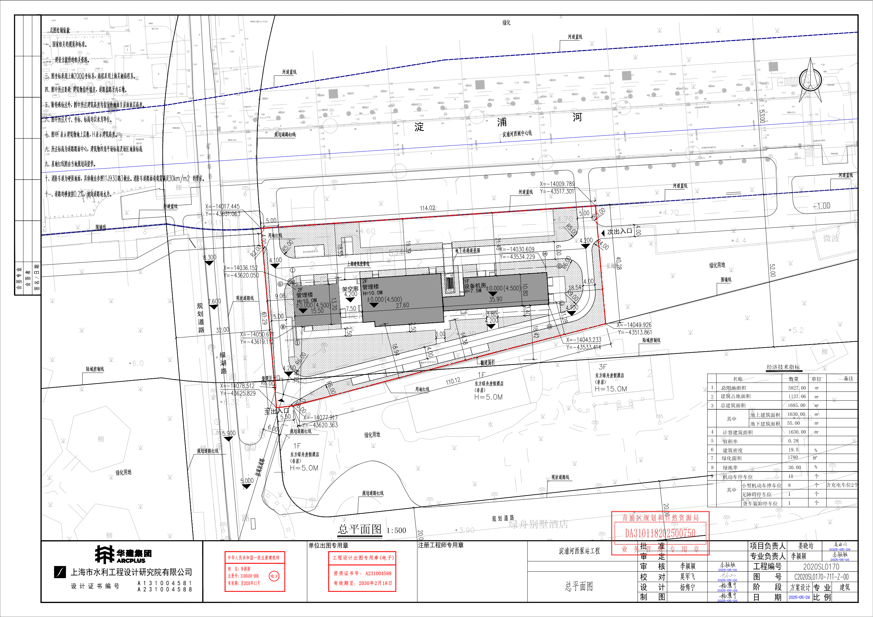
沪青方(2025)DA310118202500750建设工程设计方案(上海市堤防泵闸建设运行中心) 2025-10-14

08-总平面图_01.png