上海青浦兰科(练西)(土建)110千伏输变电工程公示 2024-12-17
公示
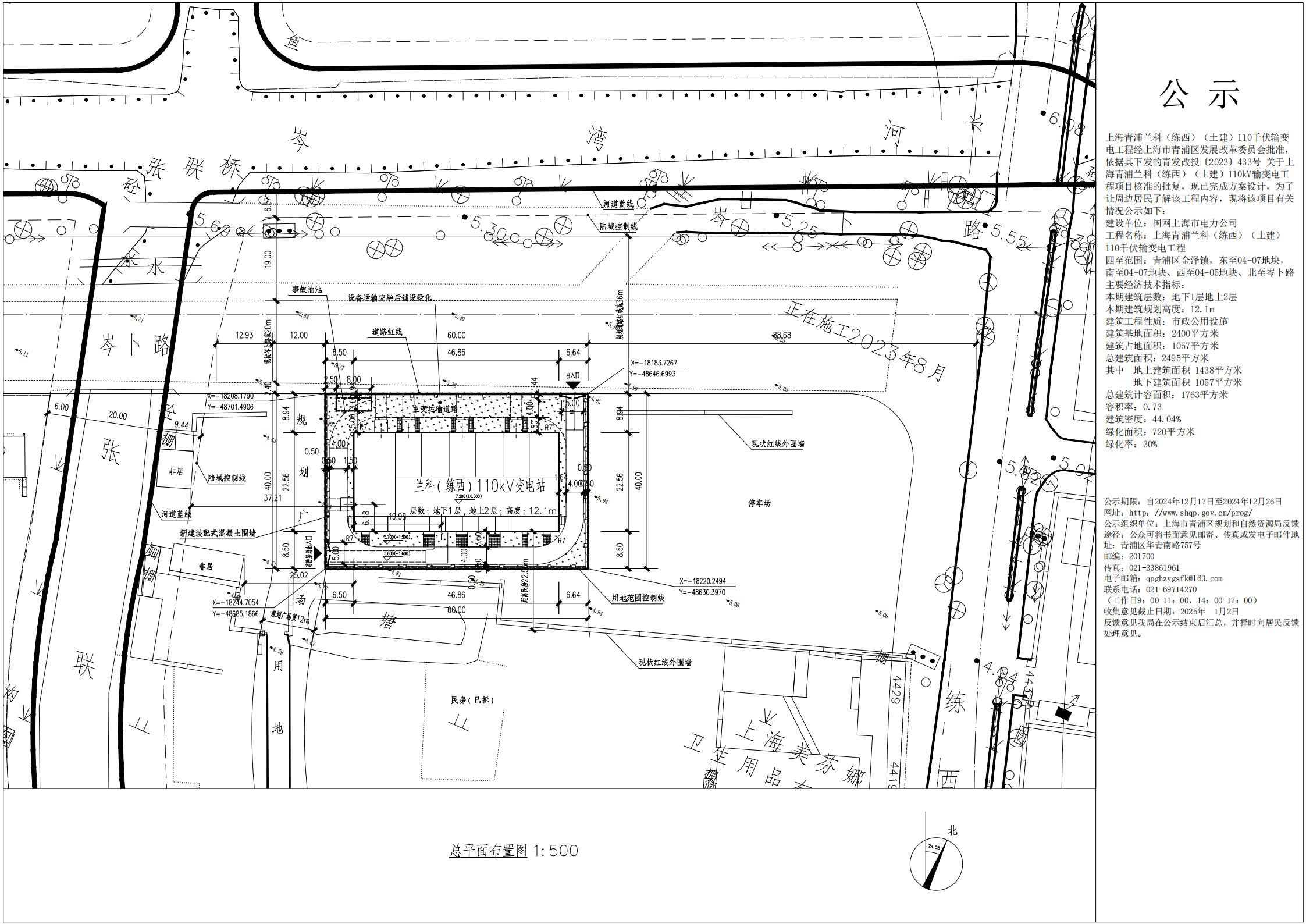
上海青浦兰科(练西)(土建)110千伏输变电工程经上海市青浦区发展改革委员会批准,依据其下发的青发改投〔2023〕433号 关于上海青浦兰科(练西)(土建)110kV输变电工
程项目核准的批复,现已完成方案设计,为了让周边居民了解该工程内容,现将该项目有关情况公示如下:
建设单位:国网上海市电力公司
工程名称:上海青浦兰科(练西)(土建)110千伏输变电工程
建设用地位置:青浦区金泽镇,东至04-07地块,南至04-07地块、西至04-05地块、北至岑卜路
公示内容:总平面布局及相关建设说明(详见公示图)
公示期限:2024年12月17日至2024年12月26日
网址:http://www.shqp.gov.cn/prog/
组织公示单位:上海市青浦区规划和自然资源局
反馈途径:公众可将书面意见邮寄、传真或发电子邮件至区规划资源局
地址:青浦区华青南路757号 邮编:201700
传真:021-33861961
电子邮箱:qpghzygsfk@163.com
联系电话:021-33861920(工作日9:00-11:00,14:00-17:00)
收集意见截止日期:2025年1月2日
反馈意见我局在公示结束后汇总,并择时向居民反馈处理意见。
欢迎广大市民积极参与,提出您的宝贵意见和建议。我局将在批准设计方案前完成对公众意见的处理。

