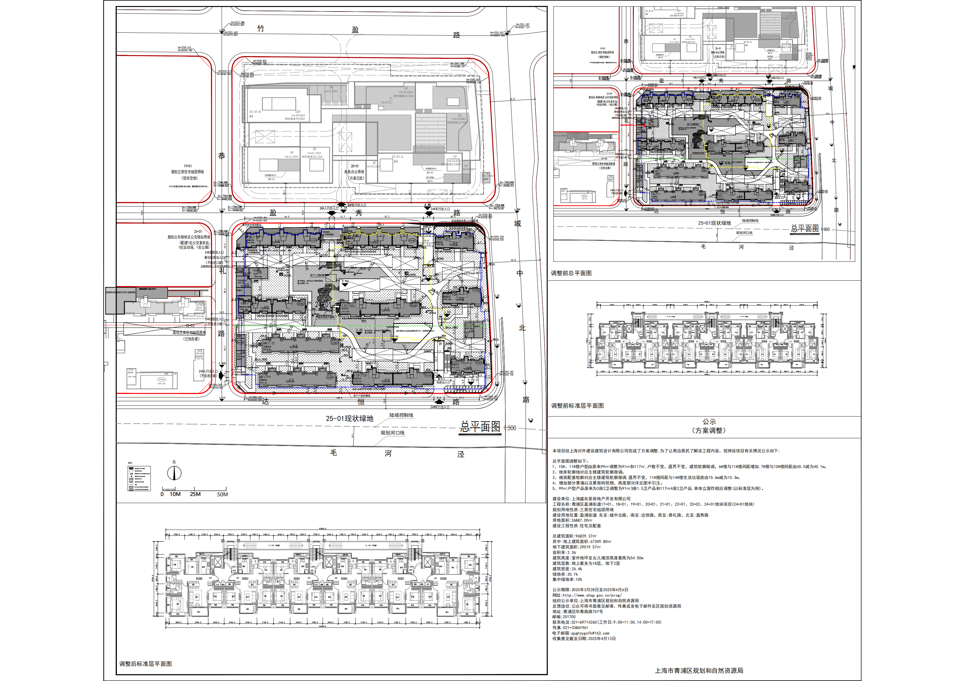
青浦区盈浦街道17-01、18-01、19-01、20-01、21-01、22-01、23-02、24-01地块项目(24-01地块)公示 2025-03-28
本项目经中国对外建设建筑设计有限公司完成了方案调整,为了让周边居民了解该工程内容,现将该项目有关情况公示如下:
建设单位:上海盛兆荟房地产开发有限公司
工程名称:青浦区盈浦街道17-01、18-01、19-01、20-01、21-01、22-01、23-02、24-01地块项目(24-01地块)
建设用地位置:青浦区盈浦街道,
东至城中北路、南至达恒路、西至恭礼路、北至盈秀路
公示内容:设计方案总平面图、方案调整内容和有关经济技术指标(详见公示图)
公示期限:2025年3月28日至2025年4月6日
网址:http://www.shqp.gov.cn/prog/
公示组织单位:上海市青浦区规划和自然资源局
反馈途径:公众可将书面意见邮寄、传真或发电子邮件至区规划资源局
地址:青浦区华青南路757号 邮编:201700
传真:021-33861961
电子邮箱:qpghzygsfk@163.com
联系电话:021-69714260(工作日9:00-11:00,14:00-17:00)
收集意见截止日期:2025年4月13日

